公司簽訂第一批臺車
文章出處:本站 人氣:10819 發表時間:2014-05-13 14:58:05


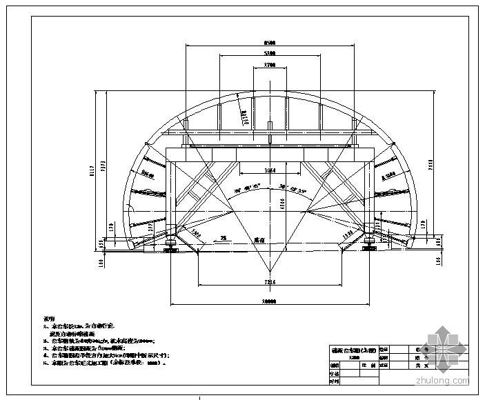
主要用于隧道,引水洞,二襯(二次襯砌)混凝土澆注使用,臺車又分為兩種結構一種是穿行式另一種是針梁式,臺車主要由龍門架和模板組成,龍門架主要承重,模板是根據隧道形狀設計的。它具有自動行走,液壓自動定位脫模(可實現上,下,左,右移動)的優點。
上一篇:達克羅產品
下一篇:2013年12月12日公司成立一周年!
標簽:




